| ID # | RLS20068042 |
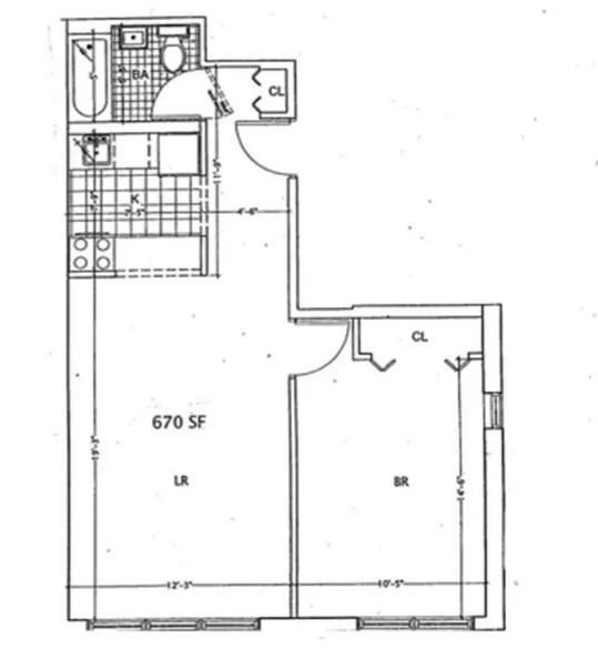
| Описание | Sugar Ridge 1 спальня, 1 ванная, Площадь дома: 670 ft2, 62m2, 14 квартир в здании, Здание имеет 6 этажа DOM: 64 дни |
| Год постройки | 2005 |
| Плата за обслуживание | $862 |
| Налоги (в год) | $24 |
| Метро | 3 минут до A, C, B, D |
| 6 минут до 3 | |
| 10 минут до 1 | |
![]() |
Солнечный свет, расположение и размер! Добро пожаловать в квартиру №5F в комплексе Sugar Ridge Condominium! Эта безупречная однокомнатная резиденция — настоящая редкость в этом бутиковом кондоминиуме. Спроектированная с учетом современного образа жизни, квартира обладает стильной открытой кухней, укомплектованной бытовой техникой GE из нержавеющей стали, включая посудомоечную машину, гранитные столешницы, гладкие белые лакированные шкафы и изящную серую фарфоровую плитку на стенах.
Яркая и просторная гостиная идеально подходит как для отдыха, так и для развлечений, и выделяется большими окнами, выходящими на юг, которые наполняют пространство естественным светом на протяжении всего дня.
ЛЬГОТА ПО НАЛОГАМ ДО 2031 ГОДА
Удобства в здании включают:
Виртуальный домофон Лифт Общая прачечная Красивое озелененное общее пространство на улице Выделенный супер 303 W. 146th St. находится в идеальном расположении в Центральном Гарлеме, предлагая отличный доступ к транспорту, зеленым зонам и повседневным удобствам. Станция метро 3 линии на Harlem-148th St. и линии A, B, C, D на 145th St. находятся всего в нескольких минутах, с несколькими автобусными маршрутами, обслуживающими район. Парк Джаки Робинсона с его игровыми площадками, бассейном и центром досуга находится за углом, а набережные и спортивные поля Riverside Park также находятся поблизости. Жители пользуются легким доступом к супермаркетам, таким как Key Food и CTown, а также разнообразным местным кафе, ресторанам и магазинам, все это на фоне богатой культурной истории Гарлема и его яркой атмосферы сообщества.
Sunlight, location, and size! Welcome to #5F at Sugar Ridge Condominium! This pristine one-bedroom residence is a true rarity in this boutique condominium. Designed with modern living in mind, the home boasts a stylish open kitchen appointed with GE stainless steel appliances, including a dishwasher, granite countertops, sleek white lacquer cabinetry, and a sophisticated gray porcelain backsplash.
The bright and airy living room is ideal for both relaxing and entertaining, highlighted by oversized south-facing windows that bathe the space in natural light throughout the day.
TAX ABATEMENT THROUGH 2031
Building amenities include:
Virtual Doorman Elevator Common Laundry Room Beautiful Landscaped Common Outdoor Space Dedicated Super 303 W. 146th St. is ideally situated in Central Harlem, offering excellent access to transportation, green space, and daily conveniences. The 3 train at Harlem-148th St. and the A, B, C, D lines at 145th St. are just minutes away, with multiple bus routes serving the neighborhood. Jackie Robinson Park, with its playgrounds, pool, and recreation center, is around the corner, while Riverside Park's riverfront trails and ballfields are also close by. Residents enjoy easy access to supermarkets like Key Food and CTown, plus an array of local cafés, restaurants, and shops, all set against the backdrop of Harlem's rich cultural history and vibrant community atmosphere.
This information is not verified for authenticity or accuracy and is not guaranteed and may not reflect all real estate activity in the market. © 2026 The Real Estate Board of New York, Inc., All rights reserved.







