| ID # | RLS20074632 |
| Описание | The Argyle 3 спальни, 2 ванные, Гараж, Площадь дома: 1239 ft2, 115m2, 60 квартир в здании, Здание имеет 12 этажа DOM: 22 дни |
| Год постройки | 2008 |
| Плата за обслуживание | $1,430 |
| Налоги (в год) | $12,708 |
| Автобус | 2 минут до B103, B61 |
| 3 минут до B63 | |
| 9 минут до B67, B69 | |
| Метро | 1 минут до R |
| 3 минут до F, G | |
| Железнодо рожная станция | 1 миль до железнодорожной станции "Atlantic Terminal" |
| 2.1 миль до железнодорожной станции "Nostrand Avenue" | |
![]() |
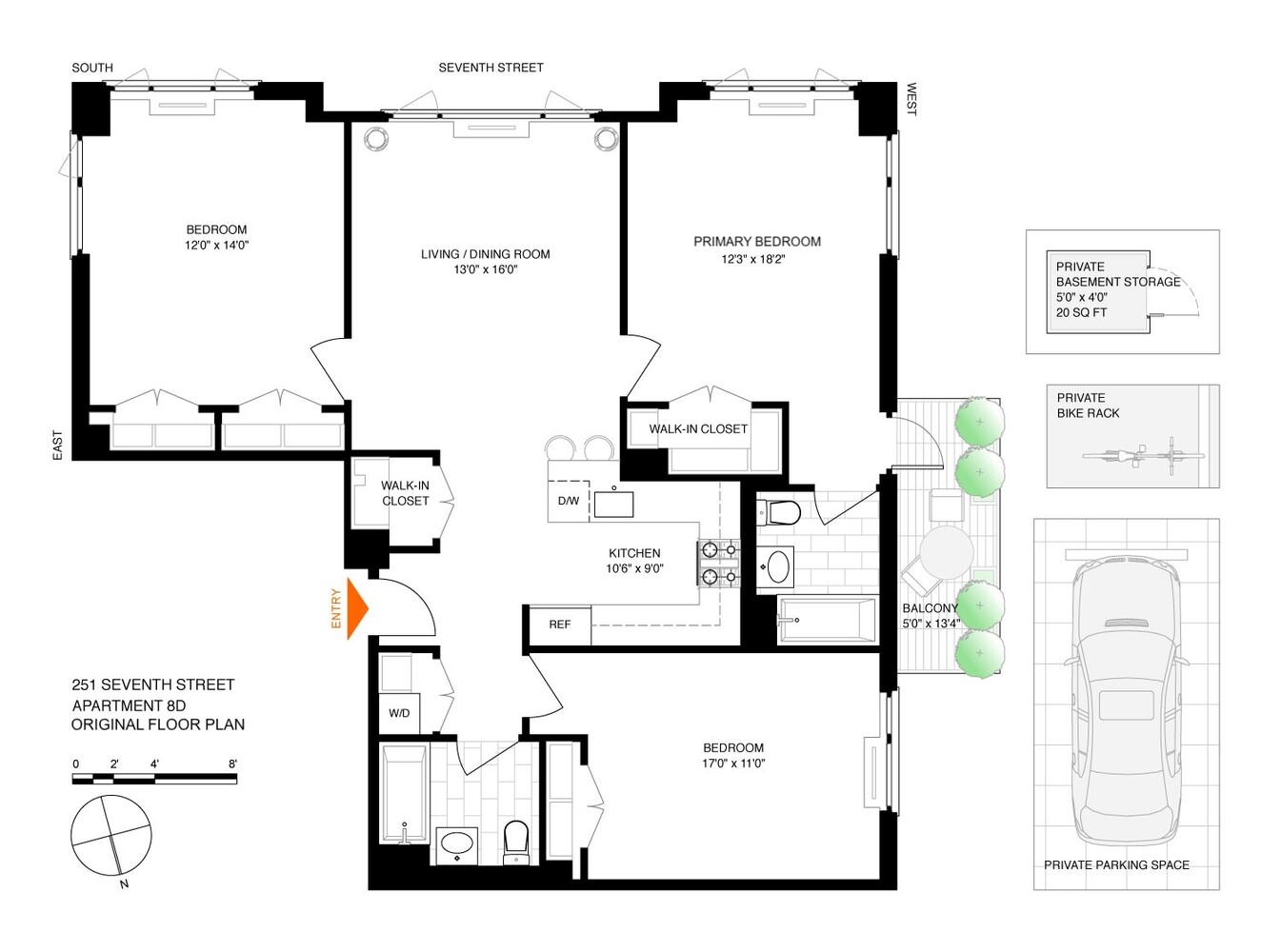
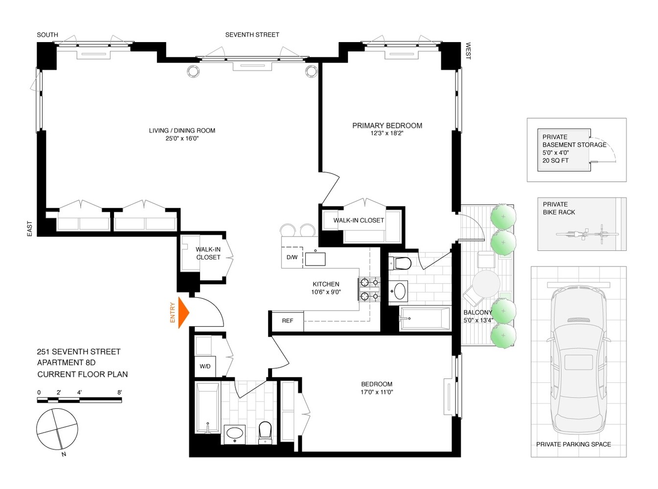
Предупреждение: Вы влюбитесь. Квартира 8D в кондоминиуме The Argyle соответствует всем требованиям: частная крытая парковка, открытая планировка, тройное направление с великолепными видами, балкон с видом на небоскребы, шесть шкафов, индивидуальная стойка для велосипедов и кладовая. Всё это расположено в тщательно обслуживаемом жилом здании с доступом для домашних животных и лифтом.
В настоящее время квартира имеет просторную двухспальную планировку (легко может быть переоборудована обратно в исходную трехспальную – см. планы этажей) и выходит на тихую 7-ю улицу. В ней два полных ванных комнаты, включая основную с собственным санузлом. Обе спальни boast stunning skyline views, with a private balcony off the primary suite-the perfect spot to enjoy a glass of wine while soaking in the grand vistas.
При входе вас встречает отточенная кухня с бамбуковыми шкафами, столешницами Caesarstone и островным баром, предоставляющим впечатляющее пространство для работы. По мере перемещения по квартире вы обнаружите грациозную планировку, залитую естественным светом и освеженную сквозняками. Увеличенные окна с тройным направлением (восток, юг и запад) наполняют дом ярким солнечным светом в течение дня и завораживающими закатами каждую ночь.
Дополнительные удобства включают желаемое, закрепленное место для парковки в закрытом помещении – возможно, лучшее место в гараже – а также специализированное хранение велосипедов и личный кладовка в помещении с контролируемым климатом. The Argyle также предлагает великолепную общую крышу с панорамным видом на 360 градусов, виртуального швейцара, спортзал, комнату для посылок и супер, работающего полный рабочий день.
Местоположение - это "вишенка на торте": вы всего в двух кварталах от станций метро F, G и R, и в 15 минутах от Атлантического терминала. Парк Проспект всего в пяти кварталах, а Whole Foods – всего в пяти минутах прогулки от вашей двери.
Основные моменты:
Дом: Просторная планировка (в настоящее время 2 спальни, изначально 3 спальни) с тройным направлением и потрясающими видами на закат. Внешнее пространство: Частный балкон с видом на небоскребы от главной спальни, а также общая крыша с панорамой на 360 градусов. Современная кухня: Современные бамбуковые шкафы, столешницы Caesarstone и функциональный островной бар. Хранение и парковка: Шесть больших шкафов, премиальное место для парковки в закрытом помещении, специальная стойка для велосипедов и единица хранения с контролируемым климатом. Удобства здания: Жилое здание с лифтом, допускающее домашних животных, с спортзалом, виртуальным швейцаром и супер, работающим полный рабочий день. Отличное местоположение: Два квартала до метро F/G/R; в нескольких минутах от Парка Проспект, Whole Foods и фермерского рынка Park Slope.
Warning: You are going to fall in love. Apartment 8D at The Argyle Condominium checks every single box: private indoor parking, an open layout, triple exposures with outstanding views, a skyline-facing balcony, six closets, a personal bike rack, and a storage cage. All of this is set within a meticulously maintained, pet-friendly elevator building.
Currently configured as an expansive two-bedroom (easily converts back to the original three-bedroom layout -- see floor plans), this home faces quiet 7th Street and features two full bathrooms, including a primary en suite. Both bedrooms boast stunning skyline views, with a private balcony off the primary suite-the perfect spot to enjoy a glass of wine while soaking in the grand vistas.
The entry greets you with a polished kitchen featuring bamboo cabinetry, Caesarstone countertops, and an island bar that offers impressive counter space. As you move through the home, you'll discover a gracious layout bathed in natural light and refreshed by cross breezes. Oversized windows with triple exposures (East, South, and West) provide brilliant sunlight throughout the day and breathtaking sunsets each evening.
Value-added amenities include a coveted, deeded indoor parking space -- arguably the best space in the garage -- alongside dedicated bike storage and a personal storage unit located in a climate-controlled room. The Argyle also offers a spectacular common roof deck with 360-degree views, a virtual doorman, a gym, a package room, and a full-time super.
The location is the ultimate "cherry on top": you are just two blocks from the F, G, and R trains, and 15 minutes from Atlantic Terminal. Prospect Park is only five blocks away, while Whole Foods is just a five-minute stroll from your door.
The Highlights:
The Home: Expansive layout (currently 2BR, originally 3BR) with triple exposures and breathtaking sunset views. Outdoor Space: Private skyline-facing balcony off the primary bedroom plus a common roof deck with 360-degree vistas. Modern Kitchen: Modern bamboo cabinetry, Caesarstone countertops, and a functional island bar. Storage & Parking: Six oversized closets, a premium indoor parking space, a dedicated bike rack, and a climate-controlled storage unit. Building Amenities: Pet-friendly elevator building with a gym, virtual doorman, and a full-time super. Prime Location: Two blocks to the F/G/R trains; minutes to Prospect Park, Whole Foods, and the Park Slope Farmers' Market.
This information is not verified for authenticity or accuracy and is not guaranteed and may not reflect all real estate activity in the market. © 2026 The Real Estate Board of New York, Inc., All rights reserved.







