| ID # | RLS20073587 |
| Описание | 2 спальни, 2 ванные, посудомоечная машина, Площадь дома: 981 ft2, 91m2, 4 квартир в здании, Здание имеет 4 этажа DOM: 91 дни |
| Год постройки | 2017 |
| Плата за обслуживание | $580 |
| Налоги (в год) | $9,552 |
| Автобус | 1 минут до B13, B26, B52, B54, Q58 |
| 2 минут до Q55 | |
| 7 минут до B38, B60 | |
| 10 минут до B20 | |
| Метро | 1 минут до M, L |
| Железнодо рожная станция | 1.7 миль до железнодорожной станции "East New York" |
| 2.4 миль до железнодорожной станции "Nostrand Avenue" | |
![]() |
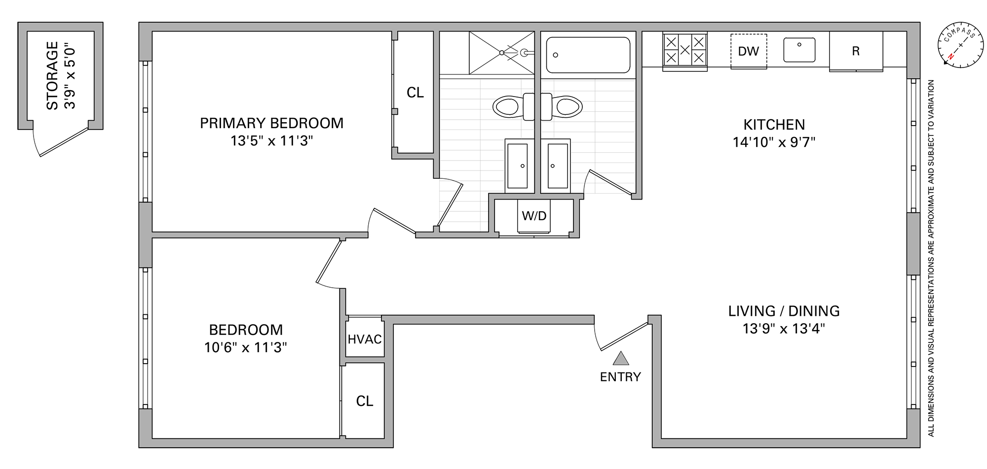
Добро пожаловать на 3 Ridgewood Place, квартира 2 — это квартира на полном этаже площадью 981 квадратный фут с двумя спальнями и двумя ванными комнатами, высокими потолками и ярким южным освещением, которое наполняет дом естественным светом в течение всего дня.
Планировка квартиры создает естественное разделение между жилыми и спальными зонами. Гостиная и столовая площадью 22 фута служат центр дома, удобно вмещая как полноразмерный обеденный стол, так и значительную зону для сидения. Увеличенные двойные окна, деревянные полы и встроенное освещение придают пространству чистое, современное определение.
Открытая кухня спроектирована как с точки зрения масштабов, так и эффективности, она укомплектована бытовой техникой из нержавеющей стали, включая холодильник и плиту Whirlpool, встроенную посудомоечную машину Bosch, индивидуальные шкафчики, обширную рабочую поверхность и бесконтактный кран. Современные удобства, такие как USB и USB-C розетки, световые выключатели LIFX с поддержкой WiFi, центральное отопление и охлаждение, умное освещение, умные замки и термостат Nest обеспечивают легкое управление и повседневный комфорт.
Обe спальни расположены в задней части дома, обеспечивая уединение от улицы. Основная спальня вмещает кровать размера king-size с дополнительным пространством для мебели и включает просторный шкаф и ванную комнату с дождевым душем и подвесной раковиной. Вторая спальня хорошо пропорциональна и обслуживается второй полной ванной комнатой. Стиральная машина/сушилка в квартире и отдельная кладовая добавляют повседневный комфорт, а жильцы имеют доступ к меблированной общей крыше.
Расположенный в Бушвике, одном из самых энергичных и развивающихся районов Бруклина, этот район славится своим креативным духом, независимыми ресторанами, ночной жизнью и чувством сообщества. Местные любимцы, такие как Rolo's, Il Gigante и Ltauha, находятся всего в нескольких шагах, а также кофейни района, такие как L’imprimerie, Saint Michel Cafe и Headrest Coffee. Бушвик был признан Time Out New York одним из лучших районов для покупателей жилья в Нью-Йорке, привлекая покупателей, которые ценят характер, культуру и потенциал долгосрочного роста. С удобным доступом к поездам L и M на станции Myrtle/Wyckoff, это место предлагает как живость, так и связь.
Welcome to 3 Ridgewood Place, Unit 2 — a 981-square-foot, full-floor condominium offering two bedrooms and two bathrooms, featuring high ceilings and bright southern exposure that fills the home with consistent natural light throughout the day.
The floor-through layout creates natural separation between living and sleeping areas. A 22-foot-wide living and dining space anchors the home, comfortably accommodating both a full dining table and a substantial seating area. Oversized double-pane windows, hardwood floors, and recessed lighting give the space a clean, modern definition.
The open kitchen is designed for both scale and efficiency, featuring stainless steel appliances including a Whirlpool refrigerator and stove, an integrated Bosch dishwasher, custom cabinetry, generous counter space, and a touchless faucet. Modern conveniences such as USB and USB-C outlets, WiFi-enabled LIFX light switches, central heating and cooling, smart lighting, smart locks, and a Nest thermostat provide effortless control and everyday comfort.
Both bedrooms are positioned at the rear of the home, offering privacy from the street. The primary bedroom fits a king-sized bed with space for additional furniture and includes a spacious closet and an en-suite bath finished with a rain shower and a floating vanity. The second bedroom is well-proportioned and served by a second full bathroom. An in-unit washer/dryer and a private storage unit add everyday convenience, and residents have access to a furnished common roof deck.
Located in Bushwick, one of Brooklyn’s most energetic and evolving neighborhoods, the area is known for its creative edge, independent restaurants, nightlife, and strong community feel. Local favorites such as Rolo's, Il Gigante, and Ltauha are just moments away, along with neighborhood cafés like L’imprimerie, Saint Michel Cafe and Headrest Coffee. Bushwick has been recognized by Time Out New York as one of the Best Neighborhoods for Homebuyers in NYC, drawing buyers who value character, culture, and long-term growth potential. With convenient access to the L and M trains at Myrtle/Wyckoff, the location offers both vibrancy and connectivity.
This information is not verified for authenticity or accuracy and is not guaranteed and may not reflect all real estate activity in the market. © 2026 The Real Estate Board of New York, Inc., All rights reserved.







