Дома на продажу
Адрес: ‎23 Florence Avenue
Почтовый индекс: 10580
5 спален, 4 ванные, 1 полуванна, 3570 ft2
分享到
$2 975 000
287 800 000 ₽
ID # 972458
Русский ‖ Russian
Are you the listing agent? Sign up to add your name and cell #
Compass Greater NY, LLC офис: ‍914-353-5570

$2 975 000 - 23 Florence Avenue, Rye, NY 10580|ID # 972458

Property Description « Русский ‖ Russian »

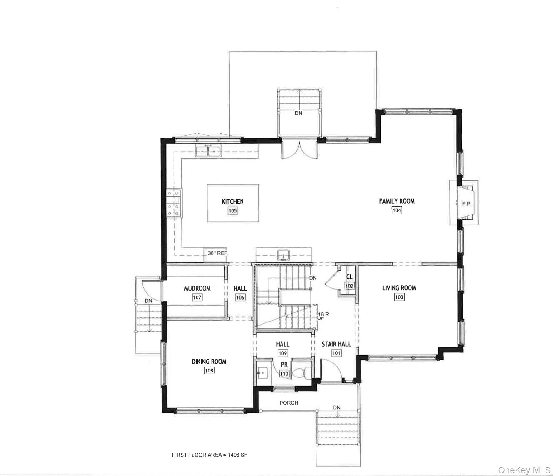
Построенный дом с 5 спальнями в колониальном стиле, расположенный в желаемом районе Глен Оукс в Рае, предлагает продуманно спроектированные жилые пространства и исключительный поток. На основном уровне находится кухня открытой планировки и семейная комната с газовым камином и дверями, ведущими на задний патио — идеальное место для жизни и развлечений на свежем воздухе. Кухня шеф-повара оборудована большим центральным островом, натуральным камнем или кварцевыми столешницами, техникой Thermador и отделкой от высококлассных дизайнеров. Она seamlessly переходит в просторную гостиную, создавая идеальные условия для повседневной жизни и встреч. Индивидуально оформленный предбанник с встроенной мебелью добавляет удобства в повседневной жизни, в то время как формальная столовая и гостиная предоставляют элегантные пространства для развлечений. На втором этаже главная спальня предлагает спокойное убежище с высокими потолками, ванной в спа-стиле с двойной раковиной, ванной для купания и индивидуальными шкафами. Спальня с отдельной ванной и две дополнительные спальни с общей ванной завершают второй этаж. Отделанный нижний уровень включает дополнительную спальню и полную ванную, игровую зону и достаточно места для хранения. Этот дом предлагает все признаки высококлассного нового строительства, щедрые потолки по всей площади, дизайнерскую отделку, светлые комнаты с множеством окон и продуманную планировку. Все еще есть время настроить отделку и детали, чтобы сделать этот дом своим. Ожидаемое завершение — конец 2026 года.

ID #‎ 972458
Описание5 спален, 4 ванные, 1 полуванна, посудомоечная машина, стиральная машина, Сушильная машина, Гараж, Кондиционер, Площадь участка: 0.15 акры, Площадь дома: 3570 ft2, 332m2
DOM: 0 дни
Год постройки2026
Налоги
(в год)
$100
Тип отопленияпол/стена
Кондиционерцентральное кондиционирование
Подвалполный подвал
Тип гаражаПристроенный гараж
Are you the listing agent? Sign up to add your name/photo/cell to your flyers. helpdesk@Samaki.com
房屋概況 Property Description « Русский ‖ Russian »« ENGLISH »

Построенный дом с 5 спальнями в колониальном стиле, расположенный в желаемом районе Глен Оукс в Рае, предлагает продуманно спроектированные жилые пространства и исключительный поток. На основном уровне находится кухня открытой планировки и семейная комната с газовым камином и дверями, ведущими на задний патио — идеальное место для жизни и развлечений на свежем воздухе. Кухня шеф-повара оборудована большим центральным островом, натуральным камнем или кварцевыми столешницами, техникой Thermador и отделкой от высококлассных дизайнеров. Она seamlessly переходит в просторную гостиную, создавая идеальные условия для повседневной жизни и встреч. Индивидуально оформленный предбанник с встроенной мебелью добавляет удобства в повседневной жизни, в то время как формальная столовая и гостиная предоставляют элегантные пространства для развлечений. На втором этаже главная спальня предлагает спокойное убежище с высокими потолками, ванной в спа-стиле с двойной раковиной, ванной для купания и индивидуальными шкафами. Спальня с отдельной ванной и две дополнительные спальни с общей ванной завершают второй этаж. Отделанный нижний уровень включает дополнительную спальню и полную ванную, игровую зону и достаточно места для хранения. Этот дом предлагает все признаки высококлассного нового строительства, щедрые потолки по всей площади, дизайнерскую отделку, светлые комнаты с множеством окон и продуманную планировку. Все еще есть время настроить отделку и детали, чтобы сделать этот дом своим. Ожидаемое завершение — конец 2026 года.

To-be-built 5-bedroom Colonial located in the desirable Glen Oaks neighborhood of Rye, offering thoughtfully designed living spaces and exceptional flow. The main level features an open-concept kitchen and family room with a gas fireplace and doors leading to a rear patio—ideal for indoor-outdoor living and entertaining. The chef’s kitchen is appointed with a large center island, natural stone or quartz countertops, Thermador appliances, and high-end designer finishes and hardware. It flows seamlessly into the spacious great room, creating the perfect setting for everyday living and gatherings. A custom-outfitted mudroom with built-ins adds everyday convenience, while the formal dining room and living room provide elegant spaces for entertaining. Upstairs, the primary suite offers a peaceful retreat with vaulted ceilings, a spa-like bath featuring a double vanity, soaking tub, and custom closets. An en-suite bedroom with a private bath and two additional bedrooms with a shared bath complete the second floor. The finished lower level includes an additional bedroom and full bath, a recreation area, and ample storage space. This home offers all the hallmarks of high end new construction, generous ceilings throughout, designer finishes, light filled rooms with plenty of windows and a thoughtful layout. There is still time to customize finishes and details to make this home your own. Expected completion is the end of 2026.

This information is not verified for authenticity or accuracy and is not guaranteed and may not reflect all real estate activity in the market. Listing courtesy of Compass Greater NY, LLC © 2026

Courtesy of Compass Greater NY, LLC

公司: ‍914-353-5570

Other properties in this area




分享 Share
$2 975 000
Дома на продажу
ID # 972458
‎23 Florence Avenue
Rye, NY 10580
5 спален, 4 ванные, 1 полуванна, 3570 ft2


Listing Agent(s):‎
Are you the listing agent?
Sign up to add your name and cell #‎
офис: ‍914-353-5570
请说您在SAMAKI.COM看此广告
请也给我ID # 972458