| MLS # | 967782 |
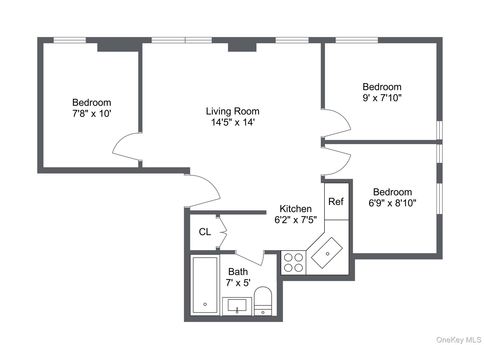
| Описание | 1 спальня, 1 ванная, Кондиционер, Площадь дома: 625 ft2, 58m2 DOM: 23 дни |
| Год постройки | 1930 |
| Плата за обслуживание | $1,200 |
| Тип топлива | Природный газ |
| Кондиционер | настенный кондиционер |
| Подвал | полный подвал |
| Автобус | 1 минут до B57, B62, B67, B69 |
| 7 минут до B26, B54 | |
| 8 минут до B25 | |
| 9 минут до B103, B38, B52 | |
| 10 минут до B41 | |
| Метро | 3 минут до F |
| 7 минут до A, C | |
| 10 минут до 2, 3 | |
| Железнодо рожная станция | 1.2 миль до железнодорожной станции "Atlantic Terminal" |
| 2.4 миль до железнодорожной станции "Nostrand Avenue" | |
![]() |
Большая 1-комнатная кооперативная квартира, которую можно использовать как 3-комнатную. Это угловая квартира с множеством окон и высокими потолками. В отличном районе, Форт-Грин, Дамбо. Рядом магазины, рестораны, станции метро F, A, C и мостовой парк. Парковка доступна, но есть очередь. В этом здании есть лифт, прачечная и консьерж.
A large 1 bedroom Co-op that can be used as a 3 bedroom. This is a corner apartment with lots of windows and high ceilings. In a Prime location, Fort Green, Dumbo. Close to shops, restaurants, F,A,C trains, and bridge park. Parking available, but there is a waiting list. This building features an elevator, laundry room, and a doorman.
This information is not verified for authenticity or accuracy and is not guaranteed and may not reflect all real estate activity in the market. Listing courtesy of Coldwell Banker Reliable R E © 2026







