| ID # | 958405 |
| Описание | 3 спальни, 1 ванная, Площадь участка: 0.46 акры, Площадь дома: 702 ft2, 65m2 DOM: 43 дни |
| Год постройки | 1956 |
| Налоги (в год) | $4,306 |
| Подвал | Нет |
![]() |
Возможность стучится в живописных предгорьях округа Салливан. Расположенный на тихой и мирной дороге Шаванга Лодж и украшенный горными видами, этот объект предлагает редкий шанс реализовать вашу идею в существующей структуре, которая уже была разобрана до стоек.
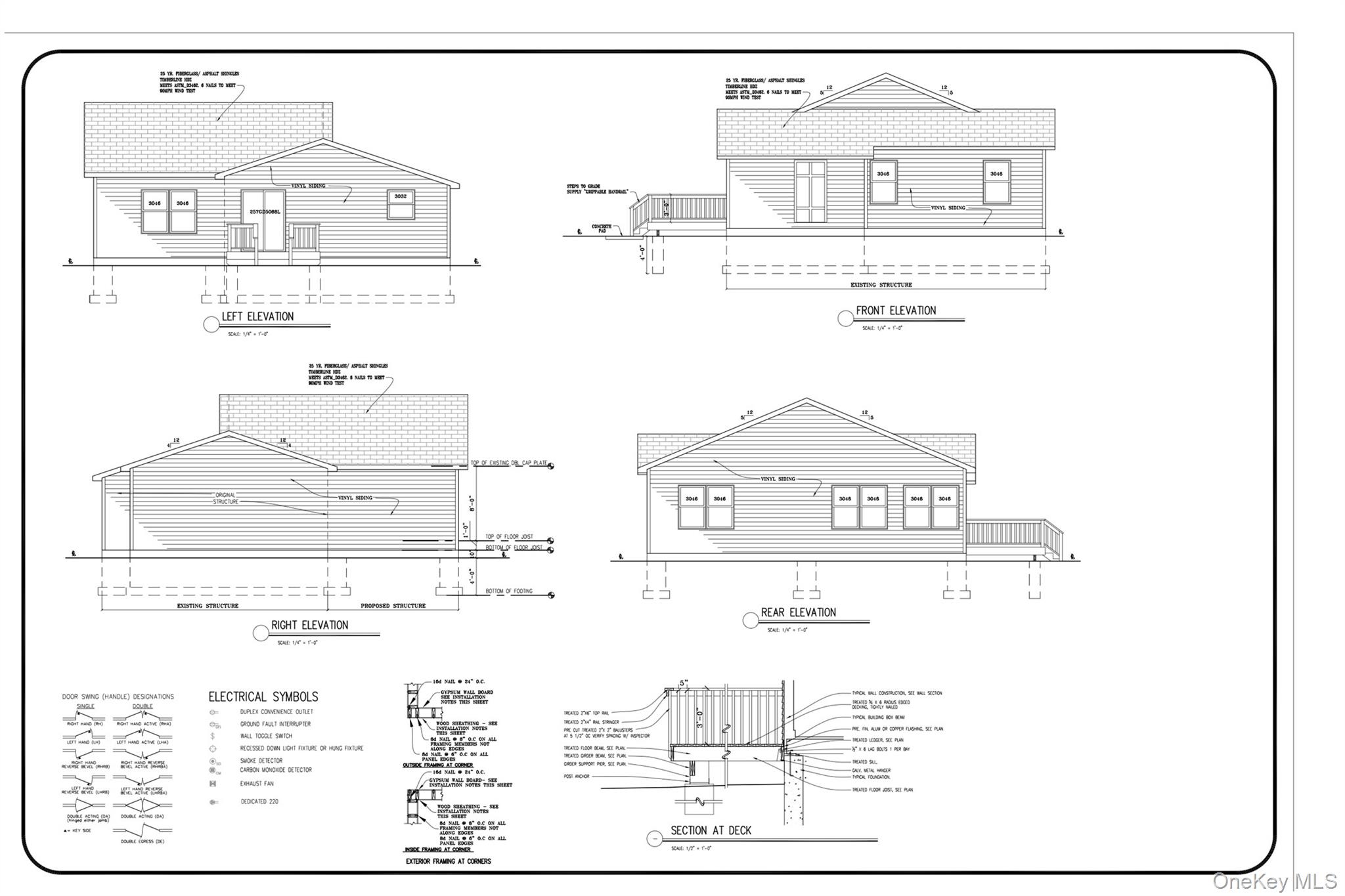
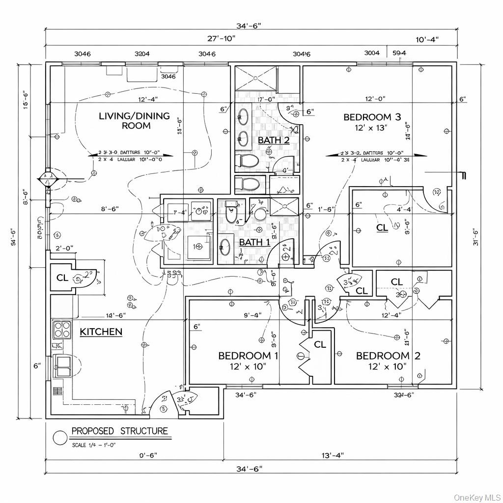
Интерьер дома полностью освобожден, создавая истинное полотно для реновации с утвержденными планами, которые расширяют фундамент до 1200 квадратных футов и превращают его в настоящий дом с 3 спальнями и 2 ванными комнатами. Независимо от того, разрабатываете ли вы постоянное жилье, уикенд для отдыха или инвестиционную недвижимость, тяжелая работа по демонтажу уже сделана - теперь он готов к вашему плану, отделке и стилю.
Основная инфраструктура уже налицо, включая функциональную скважину, септическую систему и электрическую службу, что дает вам значительное преимущество и снижает первоначальные затраты и сроки. Архитектурные и дизайнерские планы доступны для заинтересованных покупателей, предоставляя упрощенный путь вперед для тех, кто готов строить. Также есть возможность добавить дополнительную площадь к этому предложению.
С природой как фоном и уже начатыми подготовительными работами, это редкая возможность создать ценность и спроектировать нечто поистине свое в мирной обстановке на северо-востоке.
Историческое селение Блумингберг предлагает очарование маленького городка с повседневными удобствами и легким доступом к региональным направлениям. Всего в 75 минутах от GWB и всего в 15 минутах от Мидлтауна, штат Нью-Йорк, где вас ждёт доступ к NYC (через метро North, а также Greyhound/Trailways) в сочетании с ярким разнообразием магазинов, ресторанов и повседневных удобств. Местные фавориты, такие как Adams Fairacre Farms, Piccolo Cucina e Vino, Equilibrium Brewery и LEGOLAND — это всего лишь некоторые из замечательных вариантов для полноценного образа жизни, который предлагает этот район.
Opportunity knocks in the scenic foothills of Sullivan County. Set on quiet and peaceful Shawanga Lodge Road and adorned with mountain views, this property offers a rare chance to bring your vision to life in existing structure that’s already been taken down to the studs.
The interior of the home has been completely stripped, creating a true renovation-ready blank canvas with approved plans that extend the footprint to 1200 sq ft. and make it a true 3 bed 2 bath home. Whether you're designing a full-time residence, weekend escape, or investment property, the heavy lifting of demolition has already been done - now it’s ready for your layout, finishes, and style.
Major infrastructure is already in place, including a functional well, septic system, and electric service, giving you a significant head start and reducing upfront costs and timelines. Architectural and design plans are available for interested buyers, providing a streamlined path forward for those ready to build. There is also an option to add additional acreage to this offering.
With nature as your backdrop and the groundwork already started, this is a rare opportunity to create value and design something truly your own in a peaceful upstate setting.
The historic hamlet of Bloomingburg offers small-town charm with everyday conveniences and easy access to regional destinations. Just 75 minutes to the GWB, and just 15 minutes to Middletown NY where access to NYC (via the Metro North as well as Greyhound/Trailways) along with a vibrant mix of shopping, dining, and everyday amenities awaits. Local favorites like Adams Fairacre Farms, Piccolo Cucina e Vino, Equilibrium Brewery, and LEGOLAND are just a few of the great options for the well-rounded lifestyle the area provides.
This information is not verified for authenticity or accuracy and is not guaranteed and may not reflect all real estate activity in the market. Listing courtesy of Compass Greater NY, LLC © 2026







