| ID # | 11638673 |
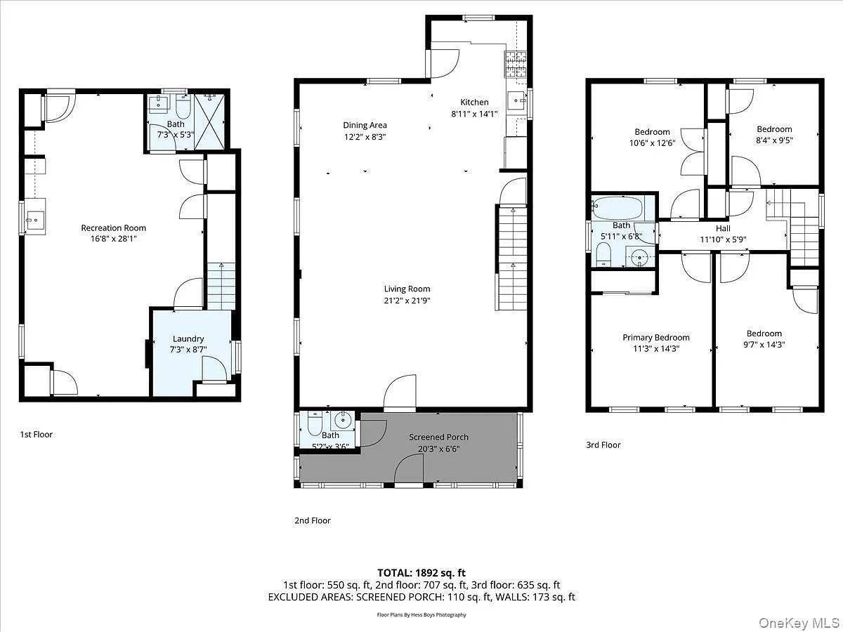
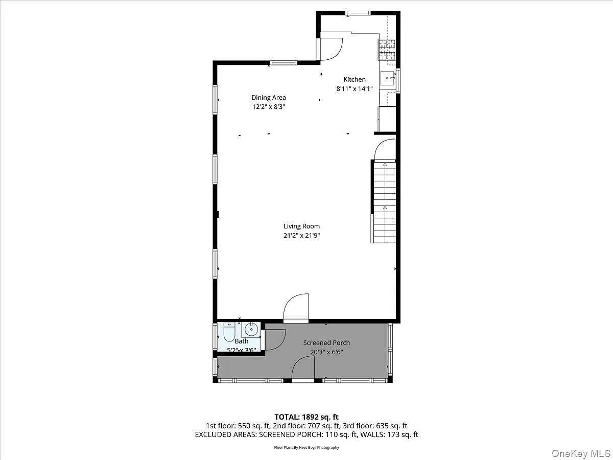
| Описание | 4 спальни, 3 ванные, Площадь участка: 0.05 акры, Площадь дома: 1394 ft2, 130m2, Здание имеет 2 этажа DOM: 43 дни |
| Год постройки | 1930 |
| English Webpage | |
![]() |
Want Access to Off-Market Homes You Can't Find on the Internet? Tired of searching and finding nothing? We have exclusive access to off-market and fully renovated properties you won't see on Zillow or anywhere online. Here's one now: A fully renovated 4 bed, 3 bath home with detached 3-car parking - and it won't last! TEXT "LIST" or Call to unlock private inventory before it hits the market. BONUSES INCLUDED FREE Premium Home Warranty valued up to $25,000 24 Month Guarantee - if you're not happy with your home, we'll buy it back within the first 24 months* We'll help you secure the best rate available with our preferred lender SELLERS Thinking about selling? We may already have your buyer. We have serious, qualified buyers waiting for homes just like yours.







