| ID # | RLS20067877 |
| Описание | 2 спальни, 2 ванные, 1 полуванна, Площадь дома: 2198 ft2, 204m2, 12 квартир в здании, Здание имеет 6 этажа DOM: 1 дни |
| Год постройки | 2010 |
| Плата за обслуживание | $2,489 |
| Налоги (в год) | $51,972 |
| Метро | 5 минут до 1 |
| 7 минут до C, E, A | |
![]() |
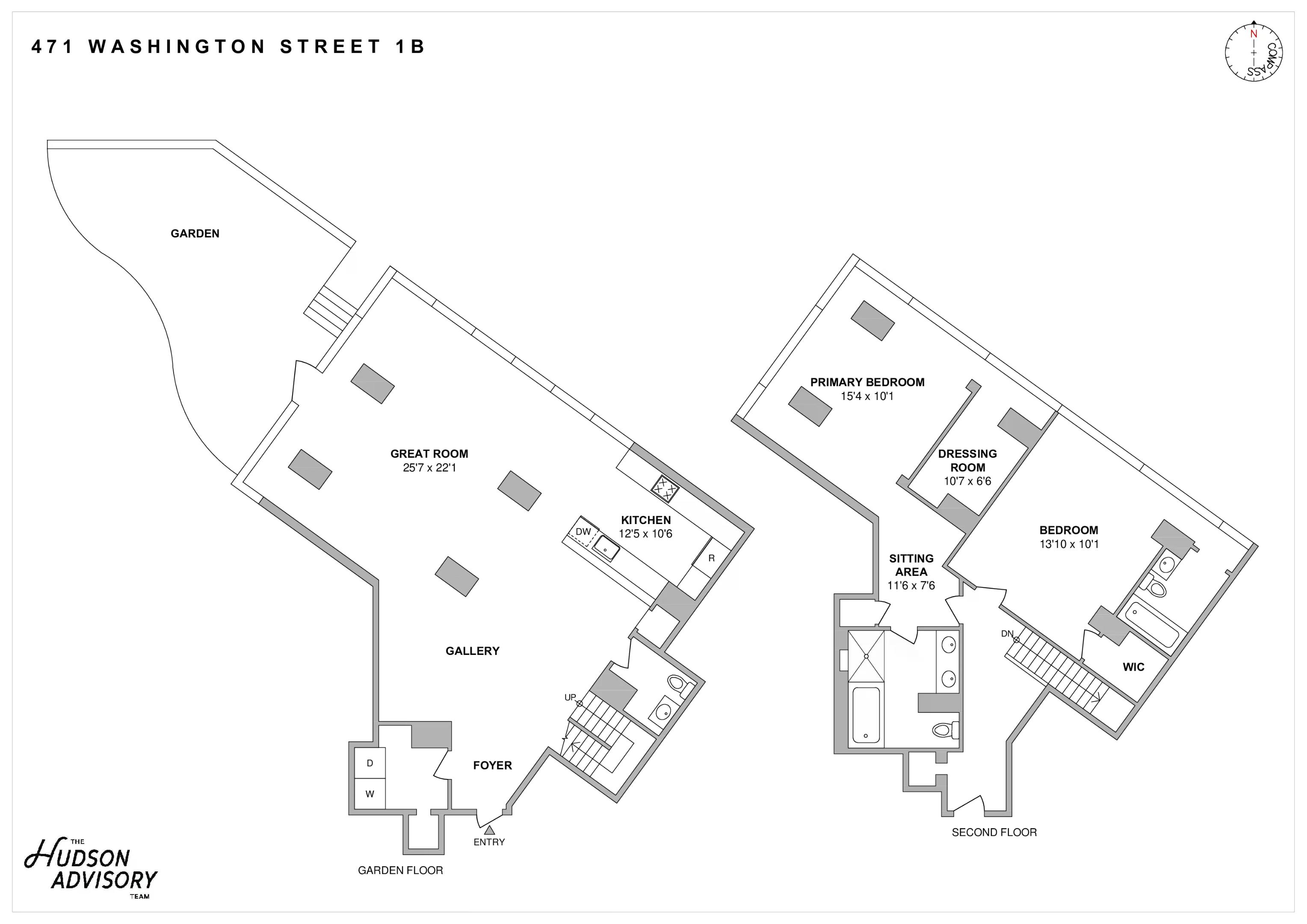
Ощутите жизнь в стиле таунхауса в Трибеке в недавно отремонтированном дуплексе с двумя спальнями и двумя с половиной ванными, который предлагает просторную, наполненную светом планировку с высокими потолками 11 футов, смелыми колоннами и панорамными окнами Schuco от пола до потолка с великолепными северными и западными видами.
Увеличенная гостиная переходит в приватную террасу площадью 416 квадратных футов, что создает плавный переход между внутренним и внешним пространством. Приватная зона на открытом воздухе была тщательно переработана с зелеными ландшафтными насаждениями, модернизированной системой полива и освещения и индивидуально спроектированной зоной для сидения, создавая спокойное урбанистическое убежище. Встроенный гриль, зона для обедов на свежем воздухе и дополнительное место для хранения дополняют функциональность и стиль. Частный выход на улицу с террасы добавляет эксклюзивности дому.
Открытая кухня шеф-повара оснащена стильными белыми лакированными итальянскими шкафами, эффектным мрамором Calacatta и высококачественной техникой. Длинный бар для завтраков, дизайнерское освещение и винный погреб на 214 бутылок, выполненный из мрамора и стекла, поднимают уровень впечатлений. Нижний уровень завершен новыми полами из красного дуба с сатиновым покрытием, обогреваемыми радиантным отоплением для круглогодичного комфорта.
На верхнем этаже главная спальня оборудована окнами от пола до потолка, широкими паркетными полами и огромной гардеробной, вдохновленной бутиками. Спальня с ванной, напоминающей спа, предлагает глубокую ванну, безрамный душ с дождем и двойную раковину, окруженную роскошным камнем. Вторая спальня включает гардеробную и элегантно оформленную приватную ванную, обеспечивая уединение и комфорт.
Построенный в 2010 году, 471 Вашингтон-стрит является современным кондоминиумом, предлагающим идеальное сочетание уединения и обслуживания. Жители pet-friendly здания наслаждаются круглосуточным обслуживанием консьержа, комнатой для упаковки и хранением. С легким доступом к Хадсон-скверу, Сохо, Гринвич-Виллидж и Финансовому району, это фантастическое месторасположение в Трибеке позволяет легко добраться до лучших возможностей для шопинга, ресторанов и ночной жизни в центре города. Огромный парк Хадсон-Ривер находится всего через Западную улицу, предлагая 500 акров прибрежного зеленого пространства и первоклассные условия для отдыха. Транспортная доступность легка благодаря поездам 1 и A/C/E, а также туннелю Голландия, которые находятся неподалеку.
Experience townhouse-style Tribeca living in this recently renovated two-bedroom, two-and-a-half-bathroom duplex, offering an expansive, light-filled layout with soaring 11-foot ceilings, bold columns, and floor-to-ceiling Schuco glass framing its stunning northern and western exposures.
The oversized great room extends into a private 416-square-foot outdoor terrace, creating a seamless indoor-outdoor flow. The private outdoor space has been thoughtfully redesigned with lush landscaping, an upgraded irrigation and lighting system, and a custom-built seating area—creating a serene urban retreat. A built-in grill, alfresco dining area, and additional storage enhance both functionality and style. Private street access from the terrace adds to the home’s exclusive feel.
The open chef’s kitchen is outfitted with sleek white lacquer Italian cabinetry, striking Calacatta marble, and premium appliances. A long breakfast bar, designer lighting, and a 214-bottle marble-and-glass wine room elevate the experience.The lower level is complete with brand-new red oak satin-finish floors, warmed by radiant heating for year-round comfort.
Upstairs, the primary suite features floor-to-ceiling windows, wide-plank hardwood floors, and a massive boutique-inspired dressing room. The spa-like en suite bathroom boasts a deep soaking tub, frameless glass rain shower, and a double vanity surrounded by luxurious stone. The second bedroom includes a walk-in closet and an elegantly appointed private bath, ensuring privacy and comfort.
Built in 2010, 471 Washington street is a contemporary condominium offering the perfect combination of privacy and service. Residents of the pet-friendly building enjoy 24-hour doorman service, package room and storage. With easy access to Hudson Square, SoHo, Greenwich Village and FiDi, this fantastic Tribeca location puts the finest Downtown shopping, dining and nightlife within easy reach. Sprawling Hudson River Park is just across West Street, providing 500 acres of waterfront green space and world-class recreation. Transportation is a breeze with 1 and A/C/E trains and the Holland Tunnel all nearby.
This information is not verified for authenticity or accuracy and is not guaranteed and may not reflect all real estate activity in the market. ©2025 The Real Estate Board of New York, Inc., All rights reserved.







