| ID # | RLS20067530 |
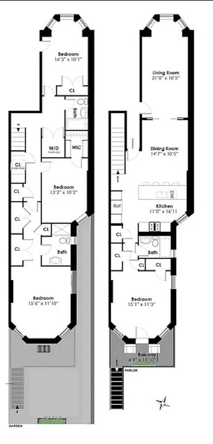
| Описание | 4 спальни, 3 ванные, посудомоечная машина, Площадь дома: 1600 ft2, 149m2, 5 квартир в здании, Здание имеет 3 этажа DOM: 2 дни |
| Год постройки | 1905 |
| Автобус | 1 минут до B38 |
| 3 минут до B52 | |
| 4 минут до B69 | |
| 6 минут до B48, B54 | |
| 8 минут до B25, B26 | |
| 9 минут до B62 | |
| 10 минут до B45 | |
| Метро | 2 минут до G |
| 8 минут до C | |
| Железнодо рожная станция | 0.7 миль до железнодорожной станции "Atlantic Terminal" |
| 1.2 миль до железнодорожной станции "Nostrand Avenue" | |
![]() |
Испытайте несравненную элегантность в этом изысканном дуплексе, спроектированном Амзи Хиллом, расположенном в престижной части исторического района Клинтон-Хилл. С площадью более 1,600 квадратных футов утончённого жилого пространства, эта исключительная резиденция предлагает идеальное сочетание классической изысканности и современных удобств.
Дуплекс доступен через красивый вестибюль, украшенный оригинальными витражами, что задаёт тон вечного очарования с самого момента вашего приезда. Внутри вы найдёте 4 щедро размеренных спальни и 3 прекрасно оформленных ванные комнаты, идеально подходящие для тех, кто ищет как комфорт, так и стиль. Просторная гостиная с впечатляющими потолками высотой 12 футов и тщательной деревянной отделкой создаёт привлекательную атмосферу роскоши. Обширная столовая и гурманская кухня — мечта повара, оснащённые высококачественными приборами, включая холодильник Thermador и конвекционную плиту Bertazzoni. В квартире имеется удобное бесканальное отопление и охлаждение, множество шкафов, красивые деревянные полы и исключительная деревянная отделка по всему помещению.
Выйдите на свой частный мощёный задний сад, созданный для беззаботных развлечений и отдыха, а также на спокойную террасу у главной спальни — идеально подходящую для утреннего кофе или расслабления вечерами.
Это редкая возможность погрузиться в грандиозность жизни в Клинтон-Хилл. Запланируйте свой частный просмотр сегодня и откройте для себя свой новый дом!
Experience unparalleled elegance in this exquisite duplex designed by Amzi Hill, located in the prestigious heart of Clinton Hill's historic district. Boasting over 1,600 square feet of refined living space, this exceptional residence offers a perfect blend of classic sophistication and modern amenities.
The duplex is accessed through a beautiful vestibule adorned with original stained-glass windows, setting a tone of timeless charm from the moment you arrive. Inside, you'll find 4 generously sized bedrooms and 3 beautifully appointed bathrooms, ideal for those seeking both comfort and style. The grand living room, with its impressive 12-foot ceilings and meticulous woodwork, creates an inviting atmosphere of opulence. The expansive dining room and gourmet kitchen are a chef's dream, equipped with high-end appliances, including a Thermador refrigerator and a Bertazzoni convection stove. The apartment has convenient ductless heating and cooling, abundant closets, beautiful hardwood floors and exceptional woodwork throughout.
Step outside to your private paved back garden, designed for effortless entertaining and relaxation, along with a serene deck off the primary bedroom-perfect for enjoying morning coffee or unwinding in the evening.
This is a rare opportunity to immerse yourself in the grandeur of Clinton Hill living. Schedule your private viewing today and discover your new home!
This information is not verified for authenticity or accuracy and is not guaranteed and may not reflect all real estate activity in the market. ©2025 The Real Estate Board of New York, Inc., All rights reserved.







