| ID # | RLS20066900 |
| Описание | Regent House 3 спальни, 2 ванные, 65 квартир в здании, Здание имеет 13 этажа DOM: 61 дни |
| Год постройки | 1939 |
| Плата за обслуживание | $5,314 |
| Метро | 3 минут до F, E, M |
| 5 минут до B, D, N, Q, R, W | |
| 7 минут до 1 | |
| 9 минут до 6, C | |
| 10 минут до 4, 5, A | |
![]() |
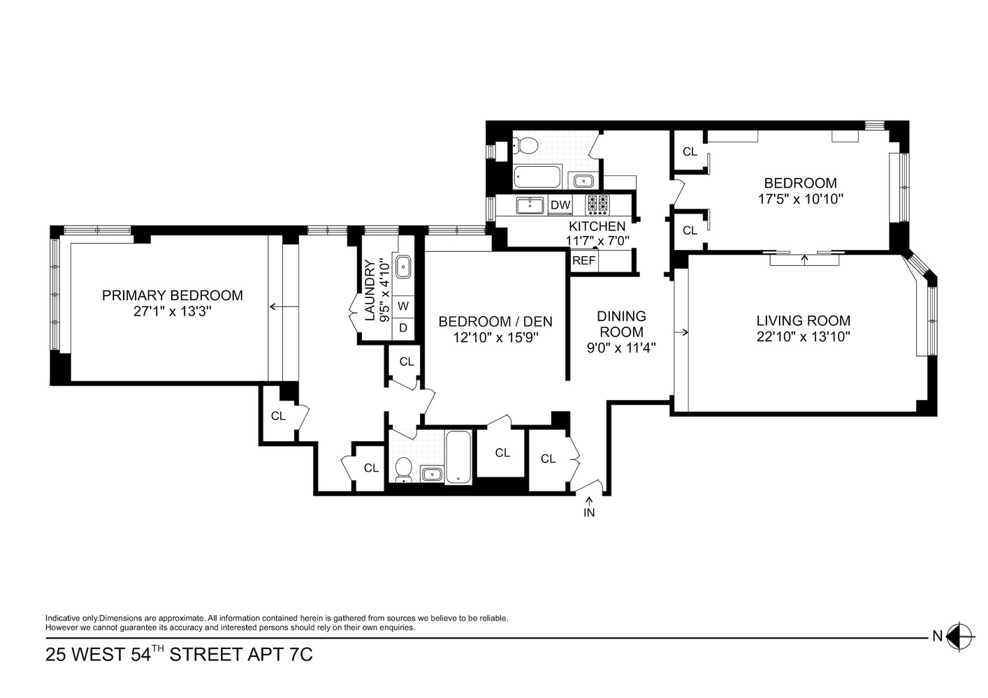
Добро пожаловать в Резиденцию 7C в Регент Хаус — безупречно отремонтированное трехспальное, двухсанузельное жилье, расположенное в самом центре Мидтауна. Окутанная южным светом и всего в нескольких шагах от Музея современного искусства, Пятой Авеню и самых знаковых культурных и ресторанных мест города, эта утонченная просторная резиденция предлагает исключительное сочетание роскоши, комфорта и расположения.
Элегантный входной холл открывает доступ к грандиозному жилому и развлекательному пространству, которое определяет великолепный деревянный пол, впечатляющие балки высотой 9 футов и большие окна в стальном каркасе с открытыми южными видами на Сад скульптур Эбби Олдридж Рокфеллер. Спроектированная как для утонченных мероприятий, так и для интимной повседневной жизни, Резиденция 7C идеально подходит как для статного шоу-проекта, так и для спокойного частного убежища.
Совсем рядом с большой комнатой находится первая из трех щедро пропорциональных спален, которые легко вмещают кровать размера "king-size" с дополнительным местом для отдыха. Индивидуальные шкафы со складными дверями ведут в впечатляющую ванную, оформленную окнами и оборудованную душем с тропическим дождем, индивидуально разработанными зеркальными шкафчиками и изысканной отделкой из мрамора.
По частному двойному коридору расположена кухня шеф-повара с окнами, снабженная современными кухонными приборами из нержавеющей стали, включая плиту с пятью конфорками, конвекционную/газовую духовку, вытяжку, посудомоечную машину, большой холодильник и обширные шкафы на заказ с большим рабочим пространством на столешнице. Поднятая столовая бесшовно соединяется с северным крылом жилья, где находятся две дополнительные спальни. Вторая и самая большая спальня имеет отдельный офисный уголок и собственный бар для вина — идеально подходит для современного образа жизни и развлечений. Третья спальня светлая и просторная, предлагает гибкость в качестве гостевой комнаты, кабинета или домашней библиотеки.
Второй полный санузел с мраморными стенами обслуживает северное крыло. Резиденция завершается обширным пространством для хранения, а также стиральной и сушильной машиной в квартире.
Регент Хаус — это кооператив с полным набором услуг и допустимыми домашними животными, предлагающий два лифта, постоянного менеджера-ресидента, сотрудников, работающих круглосуточно у входа, и выделенный персонал носильщиков. Жители имеют доступ к частной крыше и прачечной на месте.
Этот интимный 65-квартирный низкоэтажный дом идеально расположен прямо напротив Музея современного искусства и всего в нескольких минутах от Центрального парка, что ставит мировые магазины, галереи, театры и признанные рестораны у вашего порога.
Кооператив недавно завершил комплексную программу капитального улучшения, включая новый redesigned лобби, совершенно новые окна, обновленные системы отопления, вентиляции и кондиционирования, отремонтированные коридоры и восстановленный фасад. Финансирование до 75% разрешено, а pieds-à-terre допустимы. Существует текущая капитальная оценка в размере 736 долларов в месяц до декабря 2026 года.
Welcome to Residence 7C at Regent House-a flawlessly renovated three-bedroom, two-bathroom home set in the very heart of Midtown. Bathed in southern light and moments from MoMA, Fifth Avenue, and the city's most iconic cultural and dining destinations, this refined sprawling residence offers an exceptional blend of luxury, comfort, and location.
An elegant entry foyer opens into a grand living and entertaining space, defined by beautiful hardwood floors, soaring 9-foot beamed ceilings, and oversized steel-framed windows with open southern views overlooking the Abby Aldrich Rockefeller Sculpture Garden. Designed for both sophisticated entertaining and intimate everyday living, Residence 7C is equally suited as a striking showpiece and a serene private retreat.
Just off the great room is the first of three generously proportioned bedrooms, easily accommodating a king-size bed with additional lounge seating. Custom pocket-door closets lead to a stunning, windowed en-suite bath featuring a glass-enclosed rainfall shower, bespoke mirrored cabinetry, and exquisite marble finishes throughout.
Down a private double hallway lies the windowed chef's kitchen, outfitted with state-of-the-art stainless-steel appliances including a five-burner range, convection/gas oven, vented hood, dishwasher, oversized refrigerator, and abundant custom cabinetry with expansive countertop space. An elevated dining area flows seamlessly toward the northern wing of the home, where two additional bedrooms are located. The second and largest bedroom features a dedicated home office area and its own private wine bar-ideal for modern living and entertaining. The third bedroom is bright and generously sized, offering flexibility as a guest room, den, or home library.
A second full bathroom with marble-tiled walls serves the northern wing. The residence is completed by abundant closet space throughout and an in-unit washer and dryer.
Regent House is a full-service, pet-friendly prewar cooperative offering dual elevators, a live-in resident manager, full-time door attendants, and dedicated porter staff. Residents enjoy access to a private roof deck and on-site laundry facilities.
This intimate 65-unit low-rise building is ideally positioned directly across from the Museum of Modern Art and just moments from Central Park, placing world-class shopping, galleries, theaters, and acclaimed dining at your doorstep.
The cooperative has recently completed a comprehensive capital improvement program, including a newly redesigned lobby, brand-new windows, updated HVAC units, renovated hallways, and a restored facade. Financing up to 75% is permitted, and pieds-à-terre are allowed. There is a current capital assessment of $736 per month through December 2026.
This information is not verified for authenticity or accuracy and is not guaranteed and may not reflect all real estate activity in the market. © 2026 The Real Estate Board of New York, Inc., All rights reserved.







